solution

Routeur CNC M20 + Ligne de traitement recto-verso de tôles
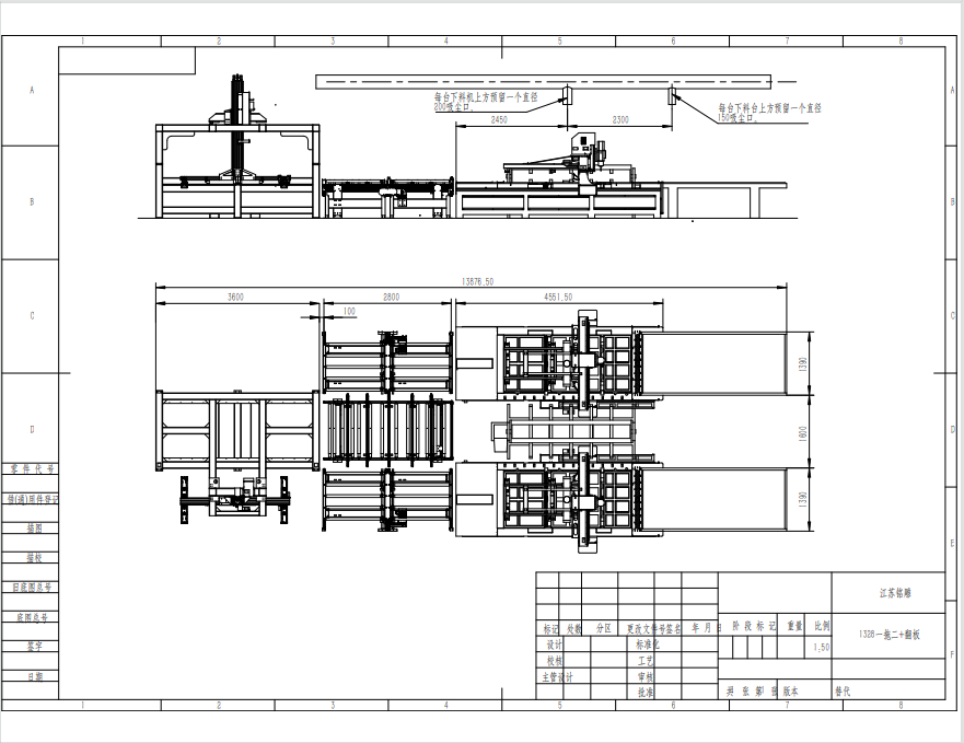
Cette ligne de production permet d'effectuer des opérations telles que le perçage des trous de charnières, le rainurage et le façonnage de l'arrière des panneaux de porte. Le processus global est le suivant : alimentation de la plateforme hydraulique en matériau ; alimentation automatique de la machine de traitement ; perçage des trous de charnières, poinçonnage, réalisation des rainures de redressage et traitement de l'arrière de la porte vitrée ; transfert vers la machine de retournement pour retourner la porte ; retour vers le centre de traitement des formes de porte ; traitement et découpe de la forme de la porte sur la face avant ; évacuation du produit fini vers la plateforme de déchargement avec alimentation simultanée en matériau ; apposition manuelle des étiquettes et collecte du matériau.
-

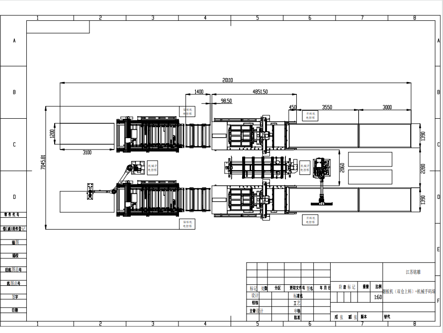
Cadre de portique M12 alimentant une ligne de production de meubles 1 à 2
La machine de gravure CNC à portique deux-en-un est un système automatisé utilisant une structure de portique, capable de gérer simultanément la manutention des matériaux et le chargement/déchargement de deux machines-outils CNC.
Le flux global de la ligne de production est le suivant : Chargement du portique – Machine d'étiquetage – Étiquetage – Affectation automatique aux machines de traitement par le système de distribution intelligent basé sur une armoire – Préparation de la machine – Découpe – Traitement terminé et poussé vers la plateforme de déchargement – Récupération par bras robotisé.
La structure du portique présente une rigidité et une stabilité élevées. Associée à un système de servocommande, elle assure un fonctionnement fluide et fiable, répondant ainsi aux exigences de production des entreprises pour un fonctionnement continu et durable. Grâce à l'utilisation d'un servomoteur et de guides linéaires, elle offre une vitesse de fonctionnement élevée et une grande précision de positionnement (répétabilité de ±0,5 mm à ±1 mm), réduisant considérablement les temps d'attente des machines-outils.
--

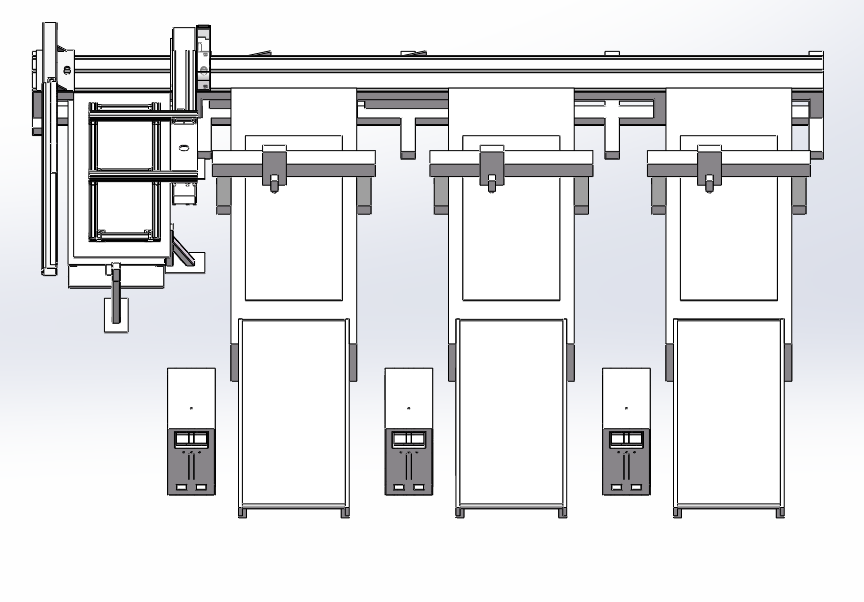
Portique MD-8AL alimentant une ligne de production de meubles 1 à 2 + palettisation robotisée
Le processus global de la ligne de production est le suivant : Chargement sur portique – Étiqueteuse – Étiquetage – Allocation automatique aux tables d’attente gauche et droite par le système de distribution intelligent de type armoire – Chargement sur machine – Assemblage de la machine – Découpe – Traitement et acheminement vers la plateforme de déchargement – Palettisation par bras robotisé
L'ensemble du processus, du chargement des matières premières à la palettisation des produits finis, ne nécessite aucune intervention manuelle, seulement un petit nombre de personnes pour la surveillance et l'assistance, ce qui permet de réaliser d'importantes économies sur les coûts de main-d'œuvre et de résoudre le problème de la pénurie de main-d'œuvre.
Centre d'usinage 1-2 : Un système de chargement à portique dessert simultanément deux machines de gravure CNC. Pendant qu'une machine est en fonctionnement, le portique charge déjà l'autre, réduisant considérablement le temps d'attente.
--

Système d'exploitation des données du site Web
Développée à partir de l'API Google, cette solution Big Data intègre toutes les données des sites web (référencement, poids, classement, trafic, requêtes), permettant ainsi à chaque site de disposer de sa propre base de données de mots-clés et d'un système de suivi hebdomadaire des mots-clés.
--

Connecteur intelligent M12 pour la découpe de trois armoires de meubles
Le processus global est le suivant : le matériau est chargé sur la plateforme hydraulique, un étiquetage est appliqué, le système de distribution intelligent attribue automatiquement le matériau à la machine de traitement, la machine traite le matériau, il est coupé, après traitement, le matériau est poussé vers la plateforme de déchargement en attendant d'être attribué par le système de distribution intelligent, assurant ainsi un traitement continu et ininterrompu du matériau en feuille.
L'ensemble de la chaîne de production est entièrement automatisé, ne nécessitant qu'un seul opérateur pour le chargement et la surveillance générale. Elle remplace ainsi les 2 à 3 manutentionnaires et trieurs requis dans le modèle traditionnel. Ce système permet non seulement de réaliser d'importantes économies de main-d'œuvre, mais aussi de libérer les travailleurs des tâches physiques répétitives et pénibles, réduisant ainsi les risques pour la santé au travail et les difficultés de gestion.
--

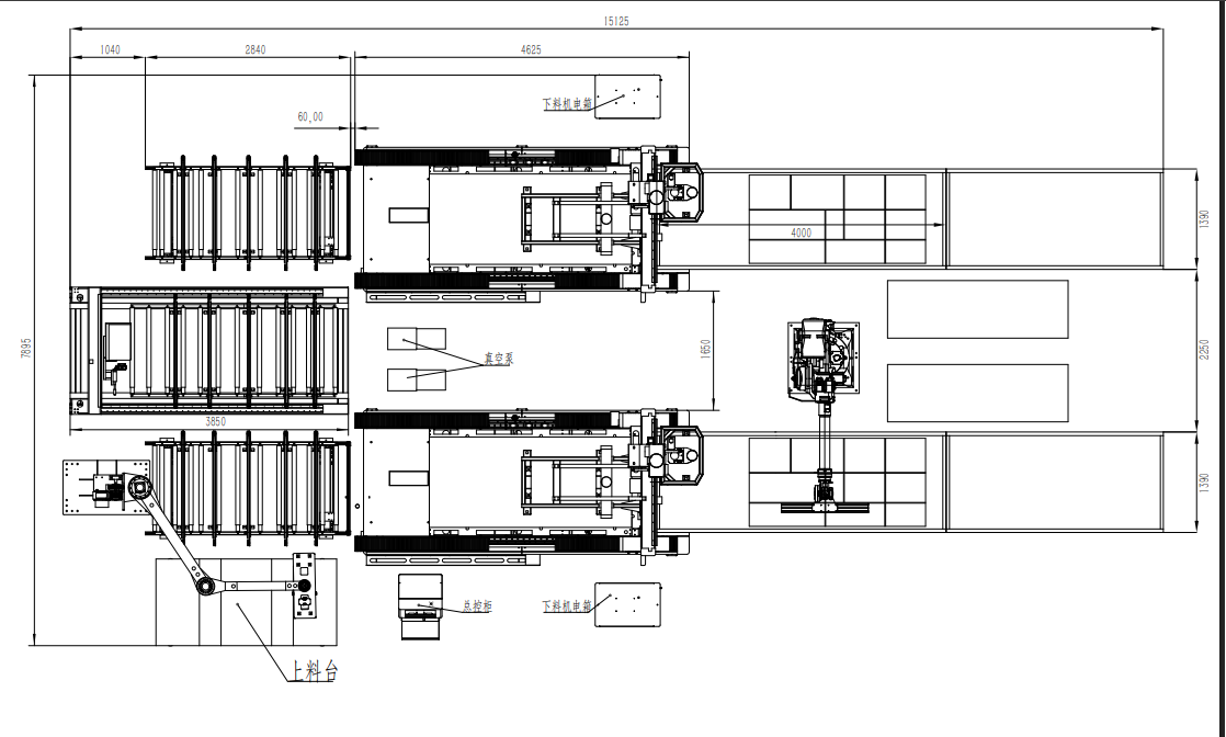
M20 Panneau de porte moulé à connexion intelligente Un à Quatre
La chaîne de production est moins sujette aux erreurs et nécessite une intervention humaine minimale. Grâce à une répartition précise des tâches de traitement par un contrôleur central, elle garantit des détails de traitement uniformes et standardisés, tels que la forme et la position des trous sur les deux faces du panneau de porte, ce qui stabilise la qualité du produit.
Le processus global est le suivant : le matériau est acheminé vers la plateforme hydraulique – automatiquement acheminé vers la machine de traitement inverse – marquage laser – perçage des trous de charnière, perforations, rainures de redressement et traitement de l'arrière de la porte en verre – transféré vers la machine de retournement – automatiquement transféré par le chariot intelligent Mingdiao vers le centre de traitement de la forme de la porte – traitement et découpe de la forme de la porte – le produit fini est poussé vers la plateforme de déchargement et chargé simultanément.
L'ensemble du processus est automatisé et ne nécessite aucune intervention humaine. Il offre une précision et une efficacité accrues, avec une capacité de production journalière de 250 à 500 mètres carrés (la conception spécifique dépend de la complexité du panneau de porte).
--
Machine à retourner 1+1

Chargement par grue à portique 1+2

Machine à retourner 1+2
Duotouji
Machine d'alimentation et de retournement à double bac
1+2
Un à trois repas

Un à quatre repas

Laissez un message
Scannez vers WeChat/WhatsApp :